赤穂小学校区・赤穂中学校区 物件詳細は弊社へご連絡ください
1階間取図 |
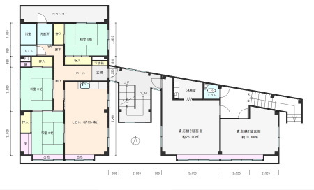
2階間取図 |
3階間取図 |
| 価 格 | 27,000,000円 | 所在地 | 赤穂市上仮屋北 | |
|---|---|---|---|---|
| 物件名 | おくのビル | 種 別 | 一棟売マンション | |
| 交通の利便 | JR赤穂線 播州赤穂駅 徒歩12分 | |||
| 土地 | ||||
| 土地面積(公簿) | 284.8u(約86.15坪) | 私道負担 | なし | |
| 地目/現況 | 宅地/上物有り | 権 利 | 所有権 | |
| 道路幅員 | 公道 東側 約3.66m 公道 南側 約16.00m |
接 面 | 東側 約6m 南側 約24m |
|
| セットバック | あり | 地 勢 | 平坦 | |
| 建物 | ||||
| 延面積 (公簿) |
1階 162.08u / 2階 163.15u / 3階 101.43u / 合計 426.66u | |||
| 構 造 | 鉄骨造・陸屋根・3階建て | 建築年 | 昭和63年2月築 | |
| 駐車場 | 無し | 引渡し | 相談 | |
| 駐輪場 | 無し | 状況 | 賃貸中 1階貸店舗1室のみ空室 |
|
| 間取り | 1階貸店舗 2室 2階貸店舗2室・居住用1室 3階居住用1室 |
|||
| 公法規制 | ||||
| 都市計画 | 市街化区域 | 用途地域 | 商業地域・一中高住専 | |
| 埋蔵文化財 | 包蔵地内 | 建蔽率/容積率 | 商業地域 80%/400% 一中高住専 60%200% |
|
| 備考 | ||||
| 2つの用途地域に該当、角地、法22条区域内・宅地造成等工事規制区域内・オーナーチェンジ物件 | ||||
| 現行表面利回り 10.44% | ||||
| 取引態様 | 媒介 | 情報登録日 | 2025/10/07 | |